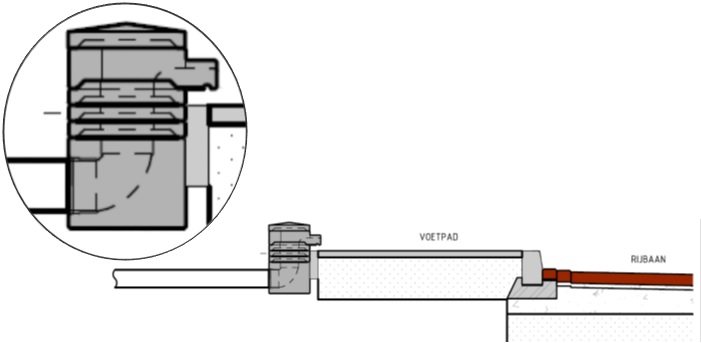
Hemelwaterbrievenbus
De prefab betonnen onderbak van 30x30 cm heeft een PVC-aansluiting ø125 mm en afhankelijk van de op te vangen hoogte kunnen één of meerdere opvulringen worden toegepast. Boven deze opvulringen komt de uitstroomvoorziening in de vorm van een ‘brievenbus’ waarna het geheel wordt afgedekt middels een afdekking voorzien van een dakprofiel.
